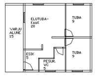
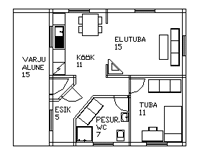
Small houses up to 60 m2
 

mm 60

 

mm 60 v1
mm 60 v2
mm 60 v3

mm 60 v4